Private Member's Club, London

Private Member's Club, London

With the design and installation of a retractable glass roof, glazing, and pergola and terrace awnings, we have contributed to the cutting-edge refurbishment of this private members’ club in London’s fashionable East End, transforming their top floor bar, restaurant and swimming pool areas to provide an exclusive but effortlessly cool hang-out for creative professionals.

We were approached at an early stage by the venue’s in-house design team, who asked us to re-design the terrace space as part of the club’s refurbishment project. The brief was to transform the uninviting look of the top floor, whilst improving on its practicality during the winter months.

Private members club 01

The design developed through four different proposals that evolved to fit the vision of the client’s design team, as well as their budgetary constraints. At this stage, we were liaising with the Quantity Surveyor appointed by the client, who gave us approval for our final design for the supporting steel structure and glass roof. The client’s design team used Breezefree’s construction and engineering expertise to carry out the full design and structural engineering for the supporting steel framework.

Private members club 02

We specified a bespoke retracting glass roof product manufactured by our partners Libart, whose product development team leapt into action to design a retracting glass roof that was nearly flat with a pitch of just two degrees. As the client requested a minimal look with discrete mullions, the roof was constructed in two halves of four panels of glass, totalling 50 square metres. This specification certainly pushed the envelope of what Libart’s engineering team previously thought possible!

Mc pic 03

Private members club 04

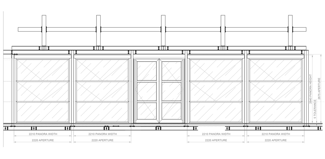
In addition to the retractable glass roof, we also designed and fitted a glazed walkway consisting of four large-format retractable Panora sash windows and a set of removable double doors, to allow the walkway to open up during the summer months as well as providing a sheltered link between the old and new restaurant areas that would also be a suitable aesthetic fit with the repurposed industrial look of the venue.

Private members club 05

In addition to the glazed elements, we also installed eleven top quality motorised folding-arm awnings around the pool, complete with unique turreted valances fabricated in house by us, and four retractable pergola awnings under the glass roof, to breathe new life into the area and provide adjustable shade and shelter.

Private members club 06

The installation was carried out at a particularly demanding time, just as a nationwide lockdown had been announced, and with complex logistical issues to overcome lifting to a roof area in central London. However, the installation was achieved within the tight time constraints of client’s programme, and with fully covid-compliant safety measures in place. The client’s feedback on our level of service was that they found us to be “helpful, responsive and easy to work with.”

Private members club 07

The result is an oasis of calm for the club’s members amongst the hustle and bustle of central London, with our work ensuring that the refurbished terrace and restaurant spaces are in keeping with the fashionable but exclusive feel of the venue, providing spaces with the flexibility to be used year-round whatever the weather.

Private members club 08

Private members club 09

Let's talk

We'd love to hear about your project

020 8877 3030

Contact Us